Wednesday, 29 April 2026

Garfield North community centre plans moving ahead

Feedback is now being to help finalise plans and the design for a new community centre at the Cannibal Creek reserve at Garfield North. Just two months after funding of the $2.3 million project was announced Cardinia Shire council has opened up...

The Gazette profile image
by The Gazette
Garfield North community centre plans moving ahead
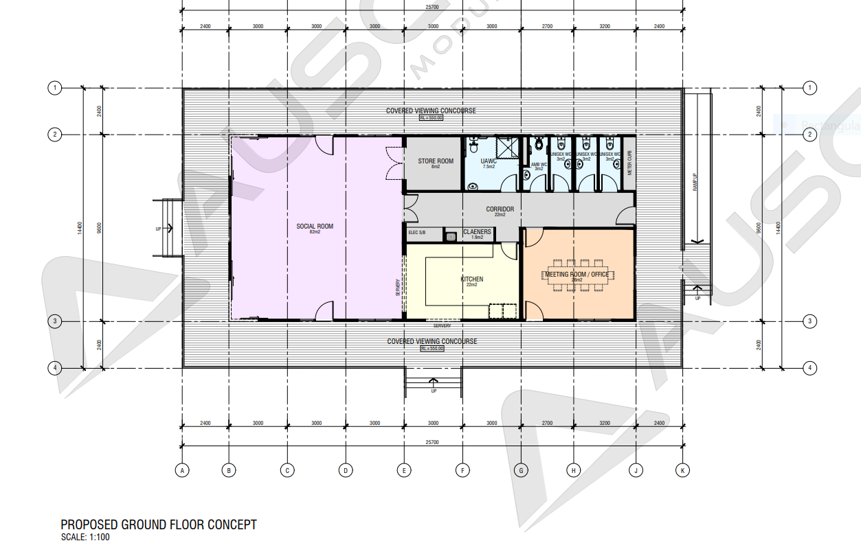
A proposed floor plan for a new community centre at the Cannibal Creek reserve at Garfield North for which Cardinia Shire Council is now seeking public feedback.

Feedback is now being to help finalise plans and the design for a new community centre at the Cannibal Creek reserve at Garfield North.
Just two months after funding of the $2.3 million project was announced Cardinia Shire council has opened up their plans to give community members and groups their chance to put their views.
The shire and the state government's Growing Suburbs Fund, that will jointly fund the new building, identified the need for a multi-use community centre for the area following the Bunyip Complex bushfires in March 2019.
Cardina council said the Garfield North area's issues were magnified during its recovery from the fires and the community centre was part of a long-term, multilayered social support and community development process.
It will be used by recreation and community groups and be a much-needed central meeting place for Garfield North.
While the plans are now open for comment and suggestions some basic elements have been decided, such as an open space for gatherings, commercial kitchen, meeting areas toilet facilities and a wide verandah.
When the funding for the project was announced Bunyip Forest Community Recovery committee president Tony Fitzgerald said the impact of the fires had been profound including at Garfield North where just about every property was hit.
Not having a gathering place hampered recovery for Garfield North residents, particularly in relation to psychological impacts, he said.
The Cannibal Creek reserve is a magnificent site and the idea to locate the centre there was embraced by the reserve's committee of management, Mr Fitzgerald stated.
Mayor Jeff Springfield said such a facility at Garfield North was long overdue and would complement the natural assets of the reserve.
People can find out more about the plans and design by visiting www.cardinia.vic.gov.au/have your say
Feedback can also be emailed to recovery@cardinia.vic.gov.au

Read More

puzzles,videos,hash-videos